Listed by Rachel Dethomas of Coldwell Banker LIFESTYLES - Concord (Cell: 603-748-1800)
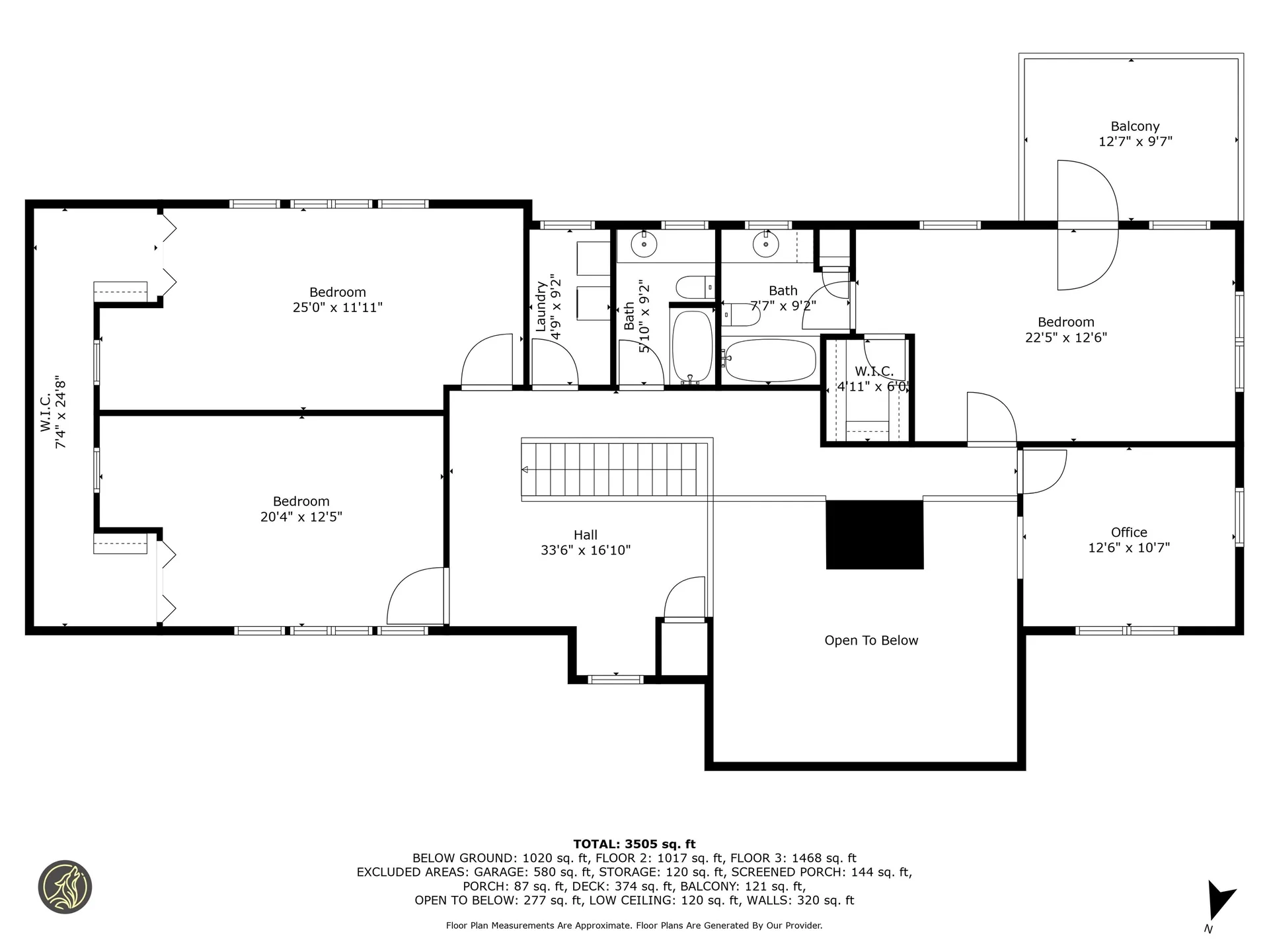
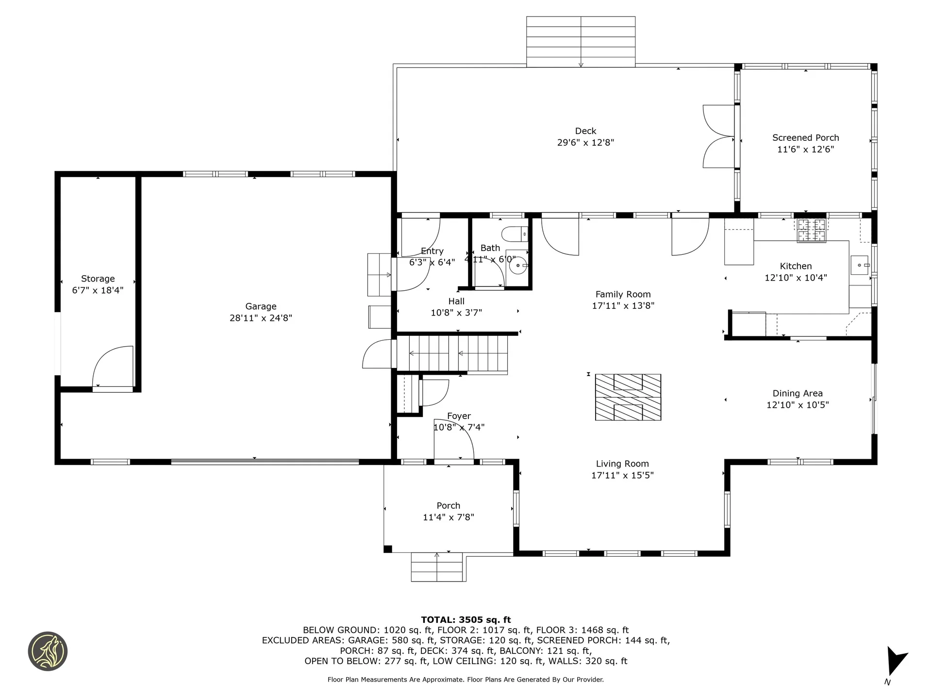
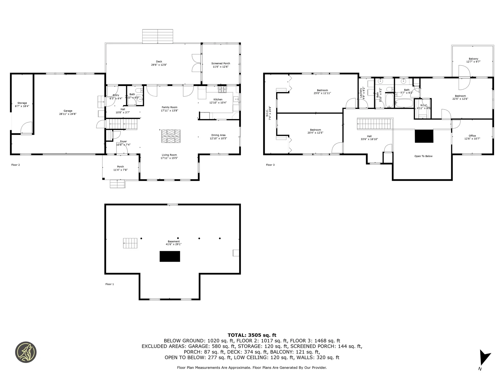
Beautiful One of a Kind Home with fields,yards,gardens & MORE!This Saltbox/Colonial has a wonderful layout and is sited on a beautiful flat 7.3 acre lot filled with fields,yards,paths,an old pasture,fruit trees,gardens etc! & SOLAR panels for very affordable power! Enter into the foyer to see to your right a center chimney fireplaced living room with cathedral ceilings and view to the 2nd story hall way with unique turned newel posts and woodwork.This open floor plan brings around the center chimney through the living room & into the more formal dining room that has a pass through to the kitchen.On the other side of the chimney find another brick hearth with woodstove, fantastic shaker style kitchen & casual dining/breakfast nook or 2nd LR w built in book cases.The stunning kitchen has custom cabinets,soapstone counters,&SS appliances.Off of the kitchen etc is a lg deck and 3 season outdoor sunroom.Upstairs the open hallway looks out on to the downstairs & has an alcove great for reading.Down the hall is a great office w built-ins & a window looking down into the LR, next is the primary suite with its own bathroom and outdoor 2nd story deck/balcony.Next is the upstairs 3/4 bath, laundry room and two more lg bright bedrooms!The basement is lg and the 2 car garage looks like a barn & has plenty of space and a mudroom entry into the house with 1/2 bath.The land has so much to offer with stonewalls,privacy,beautiful plantings,chicken coop, firepit,fields,&trails!

Listing Tools

Property Details of 246 Windsor Road

Property Details

Interior Features

Exterior Features

Community

Map Location

Broker Reciprocity 

Copyright 2025 PrimeMLS, Inc. All rights reserved. This information is deemed reliable, but not guaranteed. The data relating to real estate displayed on this display comes in part from the IDX Program of PrimeMLS. The information being provided is for consumers’ personal, non-commercial use and may not be used for any purpose other than to identify prospective properties consumers may be interested in purchasing. Data last updated November 15, 2025 7:07 AM EST

 

Hi there! How can we help you?

Contact us using the form below or give us a call.

Send Us A Message:

I agree to receive marketing and customer service calls and text messages from CENTURY 21 Highview Realty. To opt out, you can reply 'stop' at any time or click the unsubscribe link in the emails. Consent is not a condition of purchase. Msg/data rates may apply. Msg frequency varies. Privacy Policy.

Do not fill in this field:

This site is protected by reCAPTCHA and the Google Privacy Policy and Terms of Service apply.

Hi there! How can we help you?

Contact us using the form below or give us a call.

Send Us A Message:

Do not fill in this field:

This site is protected by reCAPTCHA and the Google Privacy Policy and Terms of Service apply.

Hi there! How can we help you?

Contact us using the form below or give us a call.

Send Us A Message:

Do not fill in this field:

This site is protected by reCAPTCHA and the Google Privacy Policy and Terms of Service apply.

Do not fill in this field:

This site is protected by reCAPTCHA and the Google Privacy Policy and Terms of Service apply.

Do not fill in this field:

This site is protected by reCAPTCHA and the Google Privacy Policy and Terms of Service apply.

Do not fill in this field:

This site is protected by reCAPTCHA and the Google Privacy Policy and Terms of Service apply.

$

Do not fill in this field:

This site is protected by reCAPTCHA and the Google Privacy Policy and Terms of Service apply.