Listed by Kirsten Perkins of BHG Masiello Keene

Listing Sold by Borderline Realty, LLC
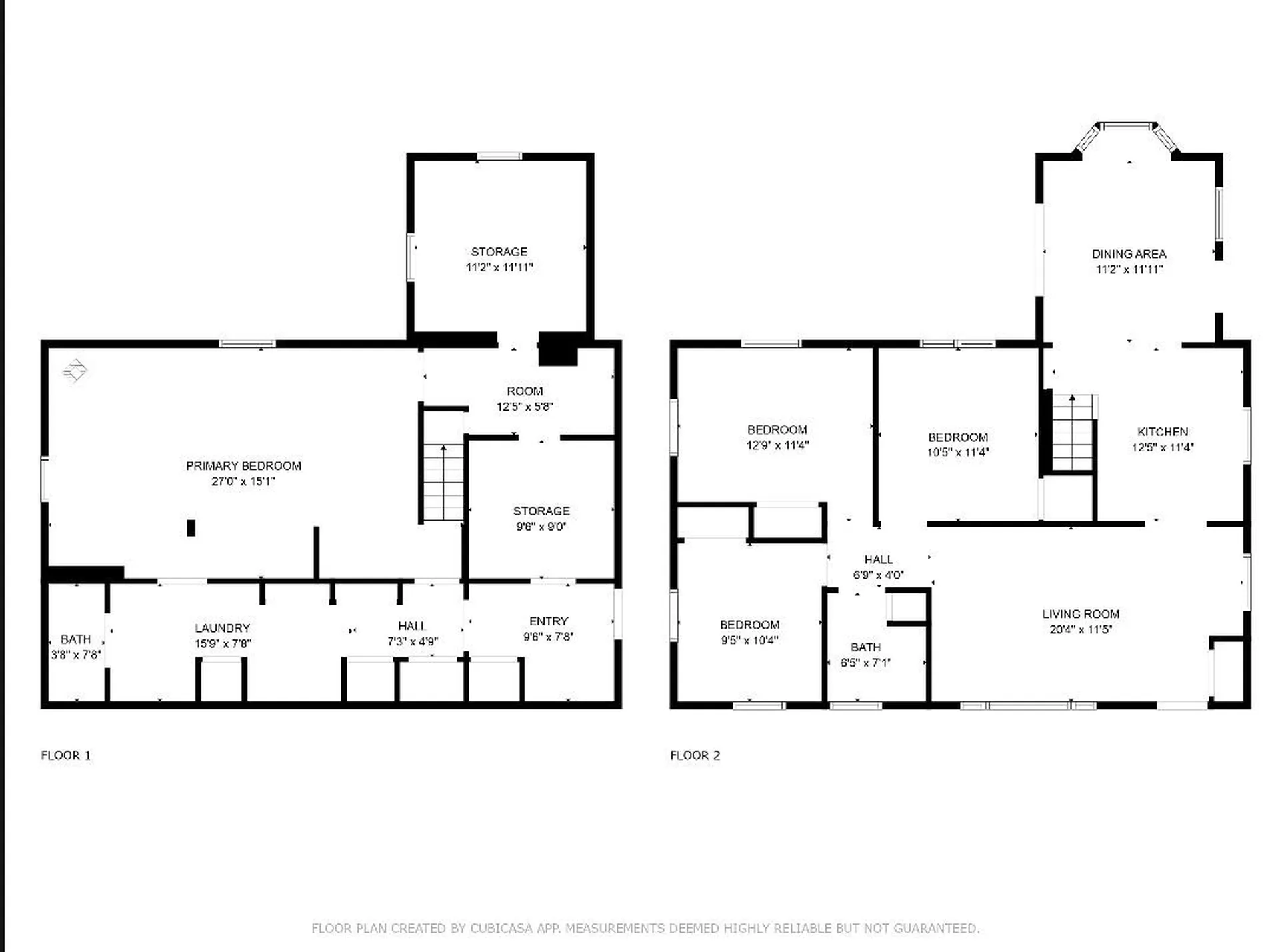
Back on the Market! Previous buyer requested concessions well beyond reason. The seller has elected instead to move forward with confidence-addressing or disclosing inspection items, providing the report to the next buyer, and with a clean sewer line scope already completed-giving peace of mind from the start. Set in a charming neighborhood within walking distance to downtown, the recreation center, and local schools, this ranch offers the perfect blend of comfort, style, and convenience. Step into the dining room, where a bay window welcomes natural light and a sliding glass door opens to a generous Trex deck-perfect for entertaining or relaxing-overlooking a private backyard and screened-in porch. The updated kitchen features soft-close cabinetry, granite countertops, and stainless-steel appliances, offering both function and beauty. Hardwood floors extend through the living room and bedrooms, while a large front-facing window in the living room creates a bright, inviting space. The full bath includes a recently replaced shower. Downstairs, the lower level provides a half bath, laundry area, ample storage, and outstanding potential for additional living space-ideal for a playroom, guest area, or home office. A newer metal roof adds to the home's value and peace of mind. From curb appeal to layout, this solid, thoughtfully cared-for home checks all the boxes.

Listing Tools

Property Details of 23 Fox Circle

Property Details

Interior Features

Exterior Features

Community

Other Details

Map Location

Broker Reciprocity 

Copyright 2026 PrimeMLS, Inc. All rights reserved. This information is deemed reliable, but not guaranteed. The data relating to real estate displayed on this display comes in part from the IDX Program of PrimeMLS. The information being provided is for consumers’ personal, non-commercial use and may not be used for any purpose other than to identify prospective properties consumers may be interested in purchasing. Data last updated January 18, 2026 2:37 AM EST

 

Hi there! How can we help you?

Contact us using the form below or give us a call.

Send Us A Message:

I agree to receive marketing and customer service calls and text messages from CENTURY 21 Highview Realty. To opt out, you can reply 'stop' at any time or click the unsubscribe link in the emails. Consent is not a condition of purchase. Msg/data rates may apply. Msg frequency varies. Privacy Policy.

Do not fill in this field:

This site is protected by reCAPTCHA and the Google Privacy Policy and Terms of Service apply.

Hi there! How can we help you?

Contact us using the form below or give us a call.

Send Us A Message:

Do not fill in this field:

This site is protected by reCAPTCHA and the Google Privacy Policy and Terms of Service apply.

Hi there! How can we help you?

Contact us using the form below or give us a call.

Send Us A Message:

Do not fill in this field:

This site is protected by reCAPTCHA and the Google Privacy Policy and Terms of Service apply.

Do not fill in this field:

This site is protected by reCAPTCHA and the Google Privacy Policy and Terms of Service apply.

Do not fill in this field:

This site is protected by reCAPTCHA and the Google Privacy Policy and Terms of Service apply.

Do not fill in this field:

This site is protected by reCAPTCHA and the Google Privacy Policy and Terms of Service apply.

$

Do not fill in this field:

This site is protected by reCAPTCHA and the Google Privacy Policy and Terms of Service apply.