Listed by Karolina Burtt of EXP Realty (Cell: 603-219-6773)
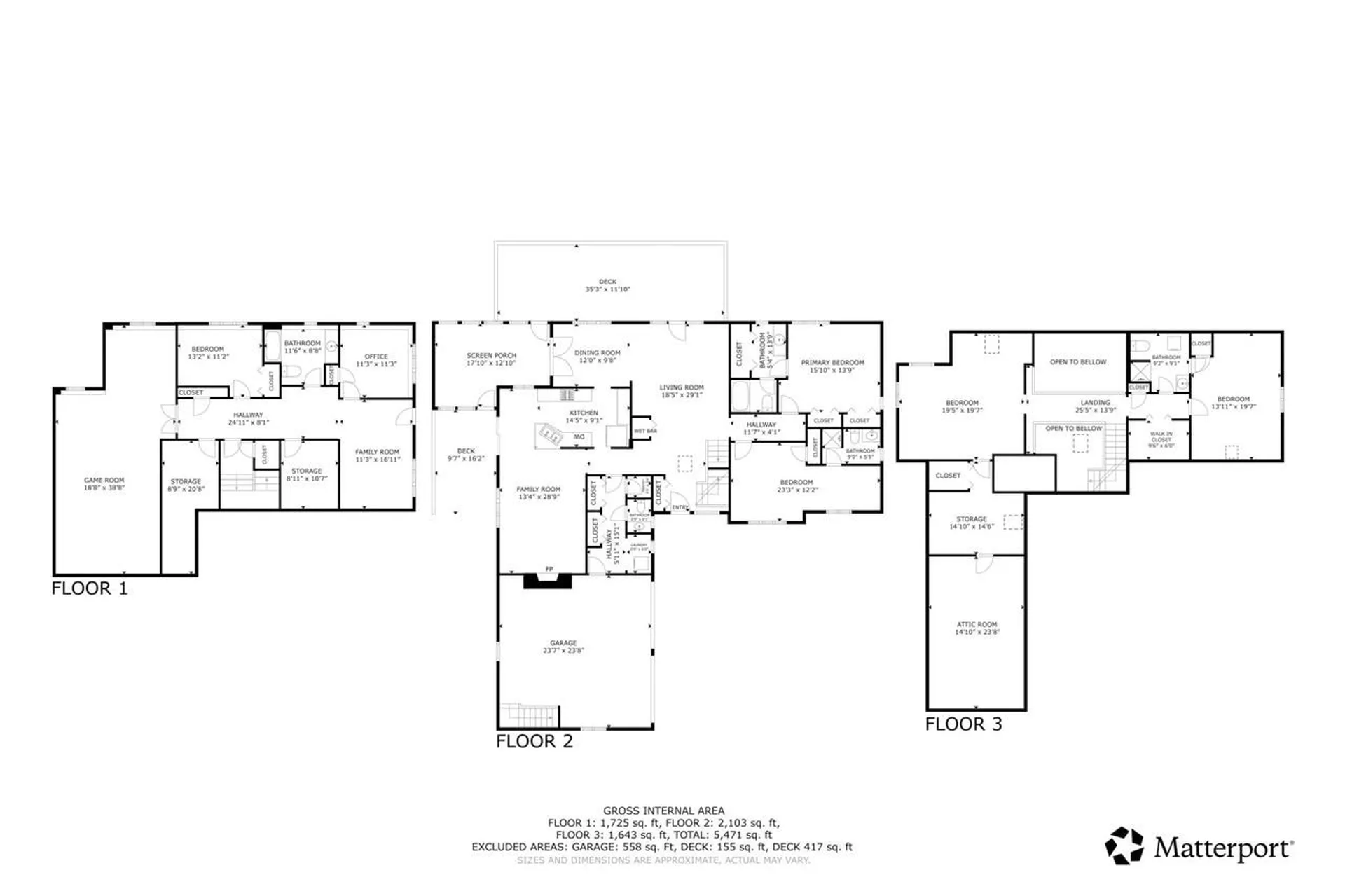
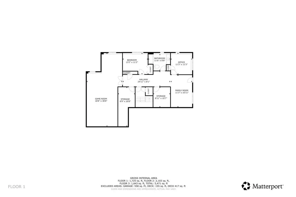
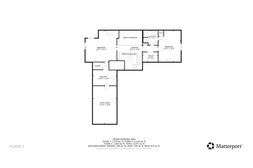
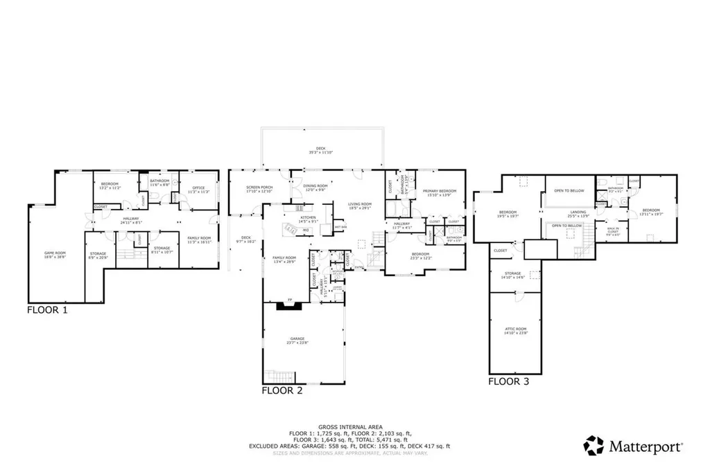
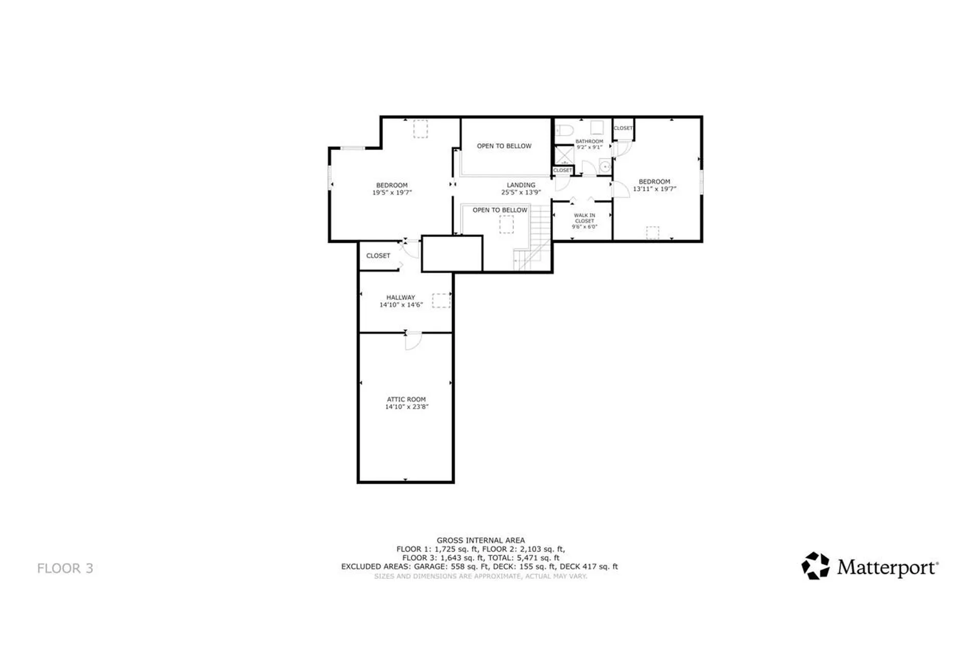
Welcome to 3 Fairway Drive in Grantham's Eastman community - a thoughtfully designed 5-bedroom, 5-bath home with space for everyone and everything. This contemporary cape offers a flexible layout with two en suite bedrooms on the main floor, two more bedrooms upstairs, and a finished walk-out lower level with an additional bedroom and office. The main living spaces are centered around a functional kitchen that connects easily to the dining, living, and family rooms - perfect for everyday life and entertaining alike. Enjoy quiet mornings or evening get-togethers on the screened porch or large deck, both overlooking the 5th fairway of Eastman's golf course. Central air and forced-air heat keep things comfortable year-round, and the attached two-car garage adds everyday ease. Located in the heart of the Eastman community, you'll have access to golf, tennis, an indoor pool, fitness center, 6 private beaches on a 335-acre lake, and miles of trails for hiking, biking, and skiing. Whether you're looking for a full-time home or a relaxing getaway, this property offers comfort, convenience, and a great connection to everything Eastman has to offer.

Listing Tools

Property Details of 3 Fairway Drive

Property Details

Interior Features

Exterior Features

Community

Map Location

Broker Reciprocity 

Copyright 2025 PrimeMLS, Inc. All rights reserved. This information is deemed reliable, but not guaranteed. The data relating to real estate displayed on this display comes in part from the IDX Program of PrimeMLS. The information being provided is for consumers’ personal, non-commercial use and may not be used for any purpose other than to identify prospective properties consumers may be interested in purchasing. Data last updated November 15, 2025 1:37 AM EST

 

Hi there! How can we help you?

Contact us using the form below or give us a call.

Send Us A Message:

I agree to receive marketing and customer service calls and text messages from CENTURY 21 Highview Realty. To opt out, you can reply 'stop' at any time or click the unsubscribe link in the emails. Consent is not a condition of purchase. Msg/data rates may apply. Msg frequency varies. Privacy Policy.

Do not fill in this field:

This site is protected by reCAPTCHA and the Google Privacy Policy and Terms of Service apply.

Hi there! How can we help you?

Contact us using the form below or give us a call.

Send Us A Message:

Do not fill in this field:

This site is protected by reCAPTCHA and the Google Privacy Policy and Terms of Service apply.

Hi there! How can we help you?

Contact us using the form below or give us a call.

Send Us A Message:

Do not fill in this field:

This site is protected by reCAPTCHA and the Google Privacy Policy and Terms of Service apply.

Do not fill in this field:

This site is protected by reCAPTCHA and the Google Privacy Policy and Terms of Service apply.

Do not fill in this field:

This site is protected by reCAPTCHA and the Google Privacy Policy and Terms of Service apply.

Do not fill in this field:

This site is protected by reCAPTCHA and the Google Privacy Policy and Terms of Service apply.

$

Do not fill in this field:

This site is protected by reCAPTCHA and the Google Privacy Policy and Terms of Service apply.