Listed by Lisa Baldwin of Coldwell Banker LIFESTYLES - Hanover (Cell: 802-356-7200)
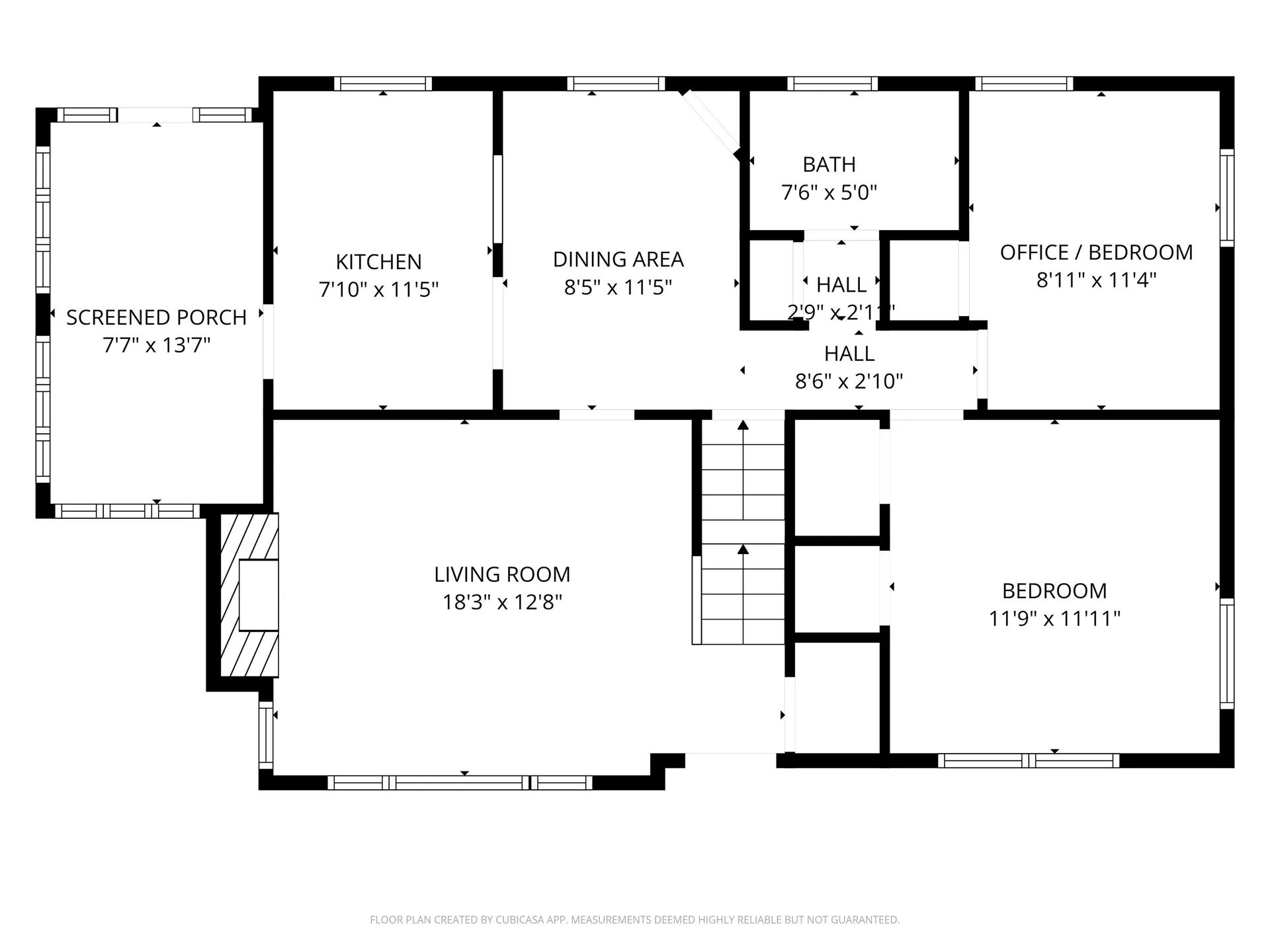
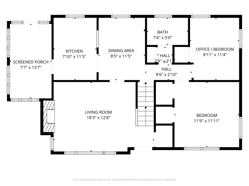
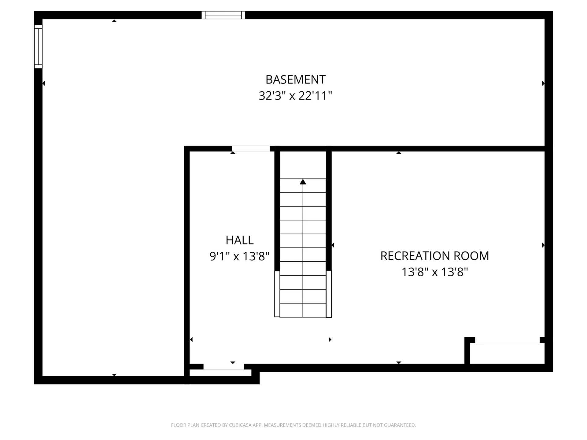
Three bedroom / 1.5 bath cape style home with 1 car detached garage and carport. This home offers lots of charm as well as one level living for those looking to limit going up and down stairs every day. On the main floor, you will find a nice size living room with a wood burning fireplace, dining room with a corner cabinet built-in, kitchen, enclosed porch just off the kitchen and entryway, good size bedroom, full bath with tile floors, as well as an office / study which current owners are using as a bedroom given it too has a closet. Upstairs there are two more fairly large bedrooms and a half bath located in the hallway. Throughout most of the house, there are wood floors both upstairs and downstairs. In the lower level, there is some additional living space should one be needing more room. Sitting on 0.6+/- acres, one will find the corner lot to be level and offering lots of space for gardens, kids and dogs to play. Sitting right across from the Hartford School, kids will never be late for class! An ideal location for those looking to head outside and enjoy everything the area offers. Conveniently located to DHMC, VA Hospital, restaurants, shopping and the amenities of the Upper Valley.

Listing Tools

Property Details of 260 Highland Avenue

Property Details

Interior Features

Exterior Features

Community

Map Location

Broker Reciprocity 

Copyright 2025 PrimeMLS, Inc. All rights reserved. This information is deemed reliable, but not guaranteed. The data relating to real estate displayed on this display comes in part from the IDX Program of PrimeMLS. The information being provided is for consumers’ personal, non-commercial use and may not be used for any purpose other than to identify prospective properties consumers may be interested in purchasing. Data last updated November 7, 2025 1:07 AM EST

 

Hi there! How can we help you?

Contact us using the form below or give us a call.

Send Us A Message:

I agree to receive marketing and customer service calls and text messages from CENTURY 21 Highview Realty. To opt out, you can reply 'stop' at any time or click the unsubscribe link in the emails. Consent is not a condition of purchase. Msg/data rates may apply. Msg frequency varies. Privacy Policy.

Do not fill in this field:

This site is protected by reCAPTCHA and the Google Privacy Policy and Terms of Service apply.

Hi there! How can we help you?

Contact us using the form below or give us a call.

Send Us A Message:

Do not fill in this field:

This site is protected by reCAPTCHA and the Google Privacy Policy and Terms of Service apply.

Hi there! How can we help you?

Contact us using the form below or give us a call.

Send Us A Message:

Do not fill in this field:

This site is protected by reCAPTCHA and the Google Privacy Policy and Terms of Service apply.

Do not fill in this field:

This site is protected by reCAPTCHA and the Google Privacy Policy and Terms of Service apply.

Do not fill in this field:

This site is protected by reCAPTCHA and the Google Privacy Policy and Terms of Service apply.

Do not fill in this field:

This site is protected by reCAPTCHA and the Google Privacy Policy and Terms of Service apply.

$

Do not fill in this field:

This site is protected by reCAPTCHA and the Google Privacy Policy and Terms of Service apply.