Listed by Isabella Luhrs of BHG Masiello Keene
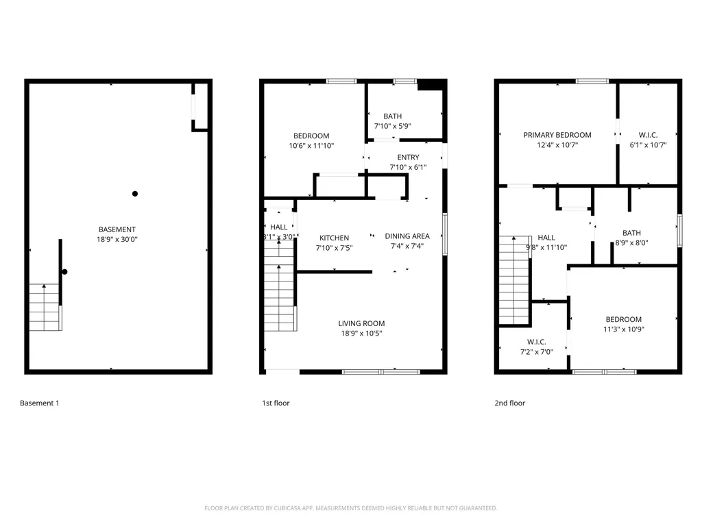
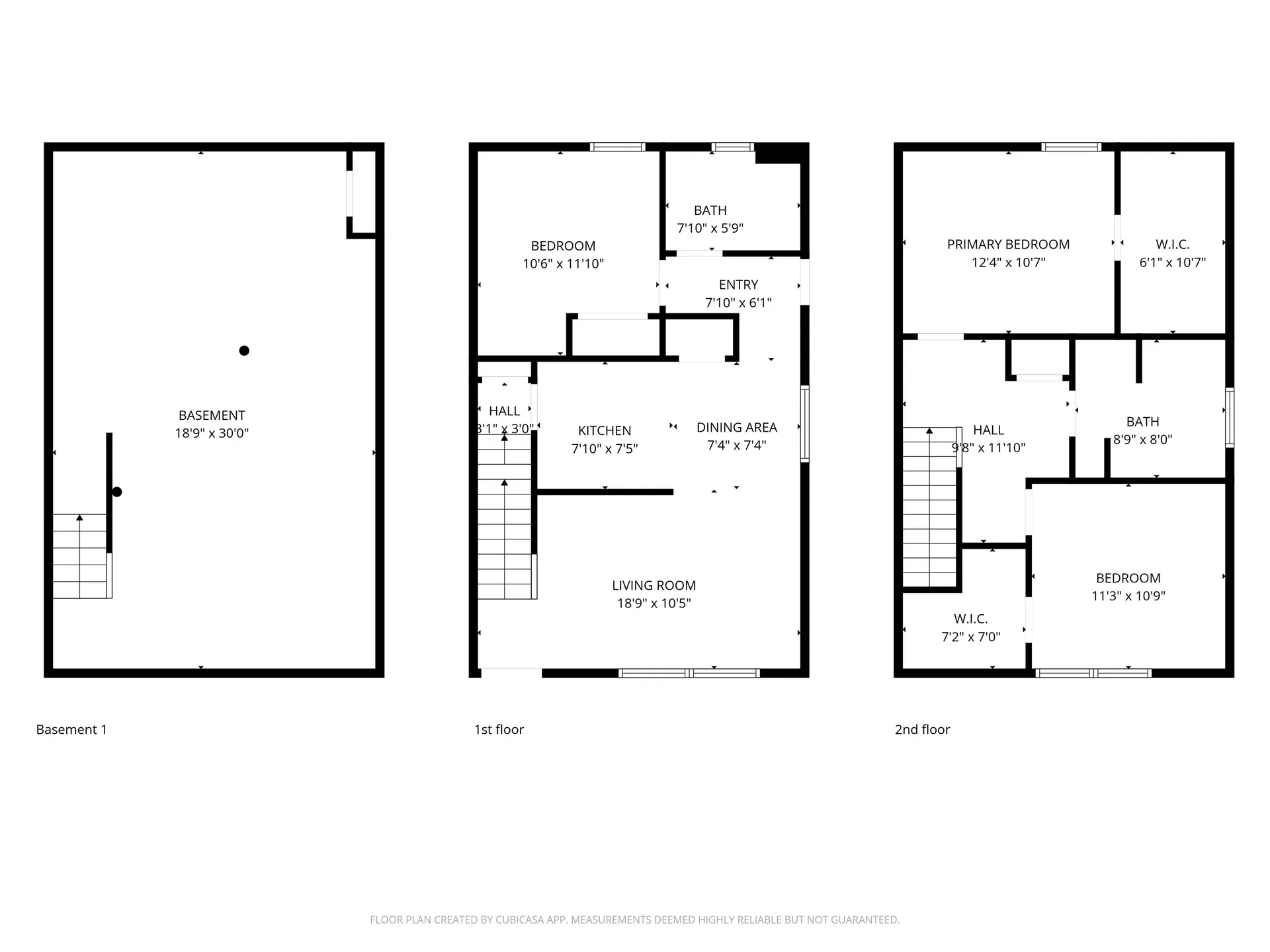
Welcome home to this beautifully crafted new construction duplex, designed with comfort, efficiency, and modern living in mind. Conveniently located minutes to Downtown Keene, close to local parks, walking trails, and offering easy access to Route 101, Route 10, and Route 9, this home sits in a prime central location near shops, restaurants, the hospital, and more. This spacious 3-bedroom unit features an inviting open-concept kitchen and living room, perfect for everyday living and entertaining. The kitchen includes brand-new stainless steel appliances and plenty of cabinet space. The first-floor primary bedroom and 3/4 bath with a step-in shower, ideal for convenient one-level living. Upstairs, you'll find two oversized bedrooms, each with their own generous walk-in closets, along with a full bathroom offering excellent storage and closet space. A clean, dry basement provides additional room for a home gym or storage and includes a washer/dryer ready for use. Enjoy year-round comfort with an on-demand hot water system and energy-efficient dual heat/cool mini-splits. Rent includes: off-street parking, landscaping, trash removal, and snow plowing. Tenant is responsible for: heat, hot water, electricity, and TV/internet. Modern, low-maintenance, energy-efficient living-just moments from everything Keene has to offer! Schedule your showing today. Pets negotiable.

Listing Tools

Property Details of 193 South Lincoln Street, Unit A

Property Details

Interior Features

Exterior Features

Community

Map Location

Broker Reciprocity 

Copyright 2026 PrimeMLS, Inc. All rights reserved. This information is deemed reliable, but not guaranteed. The data relating to real estate displayed on this display comes in part from the IDX Program of PrimeMLS. The information being provided is for consumers’ personal, non-commercial use and may not be used for any purpose other than to identify prospective properties consumers may be interested in purchasing. Data last updated January 12, 2026 6:22 PM EST

 

Hi there! How can we help you?

Contact us using the form below or give us a call.

Send Us A Message:

I agree to receive marketing and customer service calls and text messages from CENTURY 21 Highview Realty. To opt out, you can reply 'stop' at any time or click the unsubscribe link in the emails. Consent is not a condition of purchase. Msg/data rates may apply. Msg frequency varies. Privacy Policy.

Do not fill in this field:

This site is protected by reCAPTCHA and the Google Privacy Policy and Terms of Service apply.

Hi there! How can we help you?

Contact us using the form below or give us a call.

Send Us A Message:

Do not fill in this field:

This site is protected by reCAPTCHA and the Google Privacy Policy and Terms of Service apply.

Hi there! How can we help you?

Contact us using the form below or give us a call.

Send Us A Message:

Do not fill in this field:

This site is protected by reCAPTCHA and the Google Privacy Policy and Terms of Service apply.

Do not fill in this field:

This site is protected by reCAPTCHA and the Google Privacy Policy and Terms of Service apply.

Do not fill in this field:

This site is protected by reCAPTCHA and the Google Privacy Policy and Terms of Service apply.

Do not fill in this field:

This site is protected by reCAPTCHA and the Google Privacy Policy and Terms of Service apply.

$

Do not fill in this field:

This site is protected by reCAPTCHA and the Google Privacy Policy and Terms of Service apply.