Listed by Lisa Hitchcock of Dolan Real Estate (Cell: 603-454-8722)
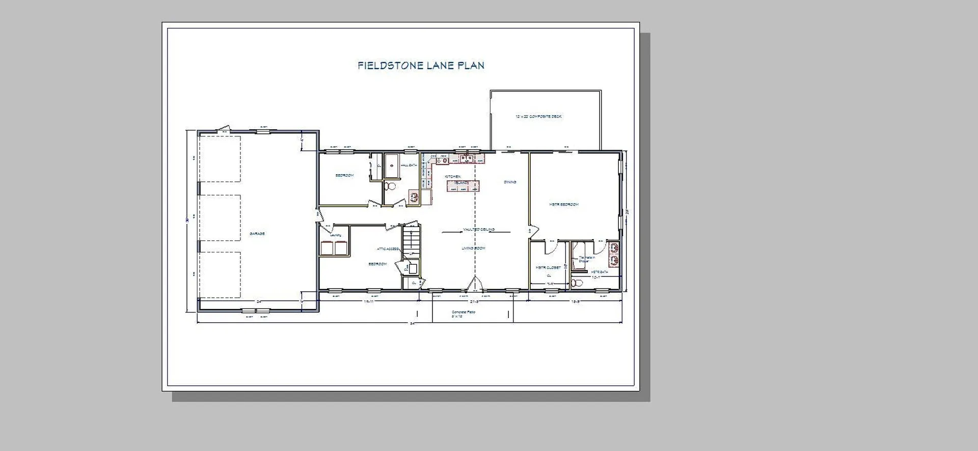
To Be Built! This is your chance to create a home tailored to your preferences, with all the advantages of planning it yourself. This stylish open-concept, expanded ranch with vaulted ceilings and a 3-car garage invites you to personalize your space, making it truly your own. If more living area is needed, finish the basement! "All completed photos are of another home built by the same builder." Located just a mile from the amenities of New London-restaurants, shops, medical services, and outdoor activities-this proximity encourages a sense of confidence and excitement about your new lifestyle. This building lot is situated with privacy in mind, yet with accessibility to everything you will need! Agent Owned

Listing Tools

Property Details of 106-15 Fieldstone Lane

Property Details

Interior Features

Exterior Features

Community

Map Location

Broker Reciprocity 

Copyright 2026 PrimeMLS, Inc. All rights reserved. This information is deemed reliable, but not guaranteed. The data relating to real estate displayed on this display comes in part from the IDX Program of PrimeMLS. The information being provided is for consumers’ personal, non-commercial use and may not be used for any purpose other than to identify prospective properties consumers may be interested in purchasing. Data last updated March 10, 2026 9:23 AM EDT

 

Hi there! How can we help you?

Contact us using the form below or give us a call.

Send Us A Message:

I agree to receive marketing and customer service calls and text messages from CENTURY 21 Highview Realty. To opt out, you can reply 'stop' at any time or click the unsubscribe link in the emails. Consent is not a condition of purchase. Msg/data rates may apply. Msg frequency varies. Privacy Policy.

Do not fill in this field:

This site is protected by reCAPTCHA and the Google Privacy Policy and Terms of Service apply.

Hi there! How can we help you?

Contact us using the form below or give us a call.

Send Us A Message:

Do not fill in this field:

This site is protected by reCAPTCHA and the Google Privacy Policy and Terms of Service apply.

Hi there! How can we help you?

Contact us using the form below or give us a call.

Send Us A Message:

Do not fill in this field:

This site is protected by reCAPTCHA and the Google Privacy Policy and Terms of Service apply.

Do not fill in this field:

This site is protected by reCAPTCHA and the Google Privacy Policy and Terms of Service apply.

Do not fill in this field:

This site is protected by reCAPTCHA and the Google Privacy Policy and Terms of Service apply.

Do not fill in this field:

This site is protected by reCAPTCHA and the Google Privacy Policy and Terms of Service apply.

$

Do not fill in this field:

This site is protected by reCAPTCHA and the Google Privacy Policy and Terms of Service apply.